!! Jetzt KfW Förderung ab 1,13% Zins nutzen – Ihr Eigenheim wartet auf Sie !!

85459 Berglern, Reiheneckhaus zum Kauf

Kontaktdaten

Peggy Hofmann, Peggy Hofmann

Objektdaten

  • Objekt ID
    1620
  • Objekttypen
    Haus, Reiheneckhaus
  • Adresse
    85459 Berglern
    Bayern
  • Etagen im Haus
    2
  • Wohnfläche ca.
    123,38 m²
  • Grund­stück ca.
    236 m²
  • Zimmer
    5
  • Schlafzimmer
    3
  • Badezimmer
    2
  • Heizungsart
    Fußbodenheizung
  • Wesentlicher Energieträger
    Luft/Wasser Wärmepumpe
  • Baujahr
    2026
  • Stellplätze gesamt
    3
  • Carports
    3 Stellplätze
  • Verfügbar ab
    2026, je nach Vereinbarung
  • Provisionspflichtig
    Ja
  • Käufer­provision
    3,57%
    Provision berechnet sich aus dem Notariell beurkundeten Verkaufspreis für das Grundstück d.h. 3,57% Provision inkl. der gesetzlichen MwSt. aus dem Grundstücksanteil.
  • Kaufpreis
    598.385 EUR

Ausstattung / Merkmale

  • ✓ Abstellraum
  • ✓ Außenstellplatz
  • ✓ Badewanne
  • ✓ Carport
  • ✓ Dusche
  • ✓ Gäste-WC
  • ✓ Tageslichtbad

Energieausweis

  • Energieausweis
    wird bei Besichtigung vorgelegt

Objekt­beschreibung

Beschreibung

Reihen-Eckhaus mit Ausbaupotenzial in KfW 40-Bauweise auf voll erschlossenem Grundstück

In familienfreundlicher Wohnlage entsteht auf einem rund 236 m² großen Grundstück ein modernes und energieeffizientes Reihen-Eckhaus mit attraktivem Ausbaupotenzial. Das Grundstück wird voll erschlossen verkauft und bildet die Grundlage für Ihr zukünftiges Zuhause – geplant ist ein hochwertiger Neubau in KfW 40-Bauweise, der schlüsselfertig durch eine renommierte Holzhaus Firma errichtet werden kann.

Der Grundstückskauf erfolgt unabhängig vom später abzuschließenden Bauvertrag – so behalten Sie volle Transparenz und Planungssicherheit.

Grundstück & Hauskonzept
•Grundstücksfläche: ca. 236 m²
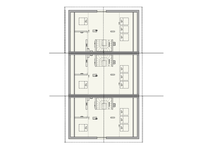
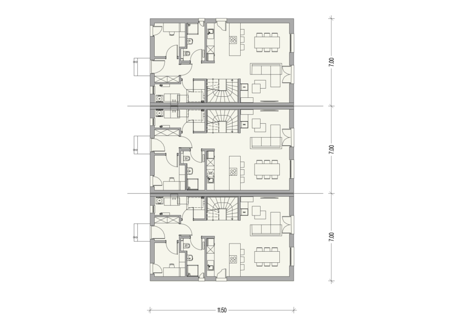
•Hausart: Reihen-Eckhaus über drei Etagen (EG, OG, DG)
•Wohnfläche (EG + OG): ca. 123 m²
•Ausbaureserve DG: ca. 35 m²
•Maximale Gesamtwohnfläche: ca. 158 m²
•Geplanter Baubeginn: 2026, je nach Vereinbarung
•Erschließung: vollständig abgeschlossen bis voraussichtlich 1. Quartal 2026
•Stellplätze: 2 Außenstellplätze + 1 Carport

Grundriss & Raumaufteilung

Erdgeschoss:
Ein großzügiger, offen gestalteter Wohn-, Ess- und Kochbereich bildet das Herzstück des Erdgeschosses. Großzügige Fensterflächen sorgen für viel Tageslicht und eine angenehme Wohnatmosphäre. Ergänzt wird das Erdgeschoss durch ein Büro – ideal für Homeoffice – sowie ein modernes Duschbad.

Obergeschoss:
Hier erwarten Sie drei helle, großzügig geschnittene Schlafzimmer, die genügend Raum für Familie, Gäste oder Hobby bieten. Das zweite Badezimmer im OG ist mit Dusche und Badewanne ausgestattet – ideal für Familienkomfort.

Dachgeschoss:
Das nicht ausgebaute Dachgeschoss bietet eine wertvolle Ausbaureserve von ca. 35 m². Ob weiteres Schlafzimmer, Studio oder Hobbyraum – hier können Sie Ihre individuellen Wohnträume verwirklichen und zusätzlichen Wohnraum schaffen.

Ausstattung & Energieeffizienz

Das Haus wird in hochwertiger KfW 40-Bauweise errichtet – energieeffizient, nachhaltig und zukunftsorientiert. Dadurch profitieren Sie von staatlich geförderten Finanzierungsmöglichkeiten (z. B. KfW-Förderkredite). Moderne Bau- und Dämmstandards sorgen für niedrige Betriebskosten und hohen Wohnkomfort.

Die schlüsselfertige Erstellung kann durch eine erfahrene Holzhaus Firma erfolgen, die für Qualität und Zuverlässigkeit steht.

Besonderheiten auf einen Blick:
•Grundstückskauf mit separatem, anschließendem Bauvertrag
•KfW 40 Effizienzhaus – Förderfähigkeit gegeben
•Geplante Wohnfläche bis ca. 158 m² möglich
•Schlüsselfertige Übergabe durch erfahrenen Baupartner
•Ruhige Wohnlage in gewachsener Umgebung
•Zwei vollwertige Badezimmer
•Carport + 2 Stellplätze
•Ausbaureserve im DG: flexibel nutzbar

Fazit:
Diese Immobilie bietet die perfekte Kombination aus Sicherheit durch Grundstückskauf, Planbarkeit durch schlüsselfertiges Bauen und Gestaltungsfreiheit durch Ausbaureserven. Ein ideales Zuhause für Familien oder Paare mit Platzbedarf und Blick auf eine energieeffiziente Zukunft. Nutzen Sie jetzt die Möglichkeit, frühzeitig in Ihr Eigenheimprojekt einzusteigen!

Sonstiges

Prospekthaftungshinweis:
Dieses Exposé stellt kein Verkaufsangebot dar. Es dient allein Informationszwecken. Alle Angaben und Darstellungen in diesem Exposé wurden zwar mit größter Sorgfalt überprüft und zusammengestellt, sie können sich aber jederzeit ändern. Weder Immobilien Hofmann noch die übrigen Verantwortlichen sind verpflichtet, den Empfänger dieses Exposés über etwaige Änderungen zu informieren. Bei technischen Angaben wie z.B. Wohnungsgrößen, sind Abweichungen möglich. Bilder sind Interpretationen des Visualisierers. Bei den abgebildeten Grundrissvarianten, Innenraumdarstellungen und Abbildungen der Sanitär- und sonstigen Ausstattungen handelt es sich um unverbindliche Einrichtungsbeispiele. Maßgeblich für die geschuldete Ausstattung und Ausführung der betreffenden Immobilie sowie deren Grundriss sind allein der notarielle Kaufvertrag und die diesem beigefügten Baubeschreibungen, Pläne und Grundrisse. Weder Immobilien Hofmann noch die übrigen Verantwortlichen übernehmen eine Haftung für die Richtigkeit und Vollständigkeit dieses Exposés. Die Haftung für Vorsatz und grobe Fahrlässigkeit sowie für die Verletzung von Leben, Körper und Gesundheit bleiben unberührt.

Jeder Makler der Firma Immobilien Hofmann GmbH & Co. KG ist ein Kooperationspartner und somit ein selbständiger Immobilienmakler, welcher rechtlich ein eigenständiges Unternehmen darstellt und auf eigene Verantwortung handelt.

Lage

Lagebeschreibung – Feldstraße 10, 85459 Berglern

Die Immobilie befindet sich in ruhiger und äußerst familienfreundlicher Lage in der Feldstraße 10 im beschaulichen Ort Berglern im oberbayerischen Landkreis Erding. Diese Lage bietet eine ideale Kombination aus naturnahem Wohnen und sehr guter Anbindung an die Metropolregion München.

Mikrolage – ruhige Stichstraße mit hoher Lebensqualität

Besonders hervorzuheben ist die verkehrsberuhigte Straßenführung in der Feldstraße, die als Stichstraße ohne Durchgangsverkehr angelegt ist. Dies schafft ein Höchstmaß an Sicherheit – insbesondere für Familien mit Kindern. Kinder können hier unbeschwert spielen, während Eltern die ruhige Nachbarschaft und das entspannte Wohnumfeld schätzen. Die umliegende Bebauung besteht überwiegend aus gepflegten Einfamilienhäusern und Doppelhaushälften, was das Wohnquartier zusätzlich aufwertet.

Familienfreundliches Umfeld

Berglern bietet eine ausgezeichnete Infrastruktur für Familien:
•Ein moderner Kindergarten und eine Grundschule befinden sich direkt im Ort – beides ist bequem fußläufig oder mit dem Fahrrad erreichbar.
•Weiterführende Schulen stehen im nahen Erding zur Verfügung, das in wenigen Minuten mit dem Auto oder öffentlichen Verkehrsmitteln erreichbar ist.
•Spielplätze, Sportvereine und Naherholungsmöglichkeiten wie die Isarauen oder das Erdinger Moos sind in unmittelbarer Umgebung vorhanden.

Verkehrsanbindung & Infrastruktur

Trotz der ruhigen Lage ist die Anbindung hervorragend:
•Die nahegelegene B388 und A92 bieten schnelle Verbindungen in Richtung München, Flughafen München (ca. 12 Min.), Freising und Landshut.
•Die Stadt Erding ist in ca. 10 Autominuten erreichbar – mit zahlreichen Einkaufsmöglichkeiten, Ärzten, Cafés und kulturellen Angeboten.
•Die S-Bahnlinie S2 (ab Erding) verbindet Sie komfortabel mit München.

Naherholung & Freizeit

Die Umgebung lädt zu Spaziergängen, Fahrradtouren und vielfältigen Freizeitaktivitäten ein. Zahlreiche Grünflächen, Felder und Wiesen beginnen direkt vor der Haustür – ein echtes Plus für Familien, die die Natur schätzen und dennoch zentrumsnah wohnen möchten.

Fazit: Die Feldstraße 10 in Berglern ist eine erstklassige Adresse für Familien, die ein ruhiges, sicheres und naturnahes Zuhause mit guter Anbindung und hervorragender Lebensqualität suchen.

Die ungefähre Position der Immobilie auf Google Maps ansehen (Link auf externe Website)

Direktanfrage

* Pflichtangaben
 SSL-verschlüsselt